︎
Open City
Architecture
About
Contact
Open City
Architecture
About
Contact
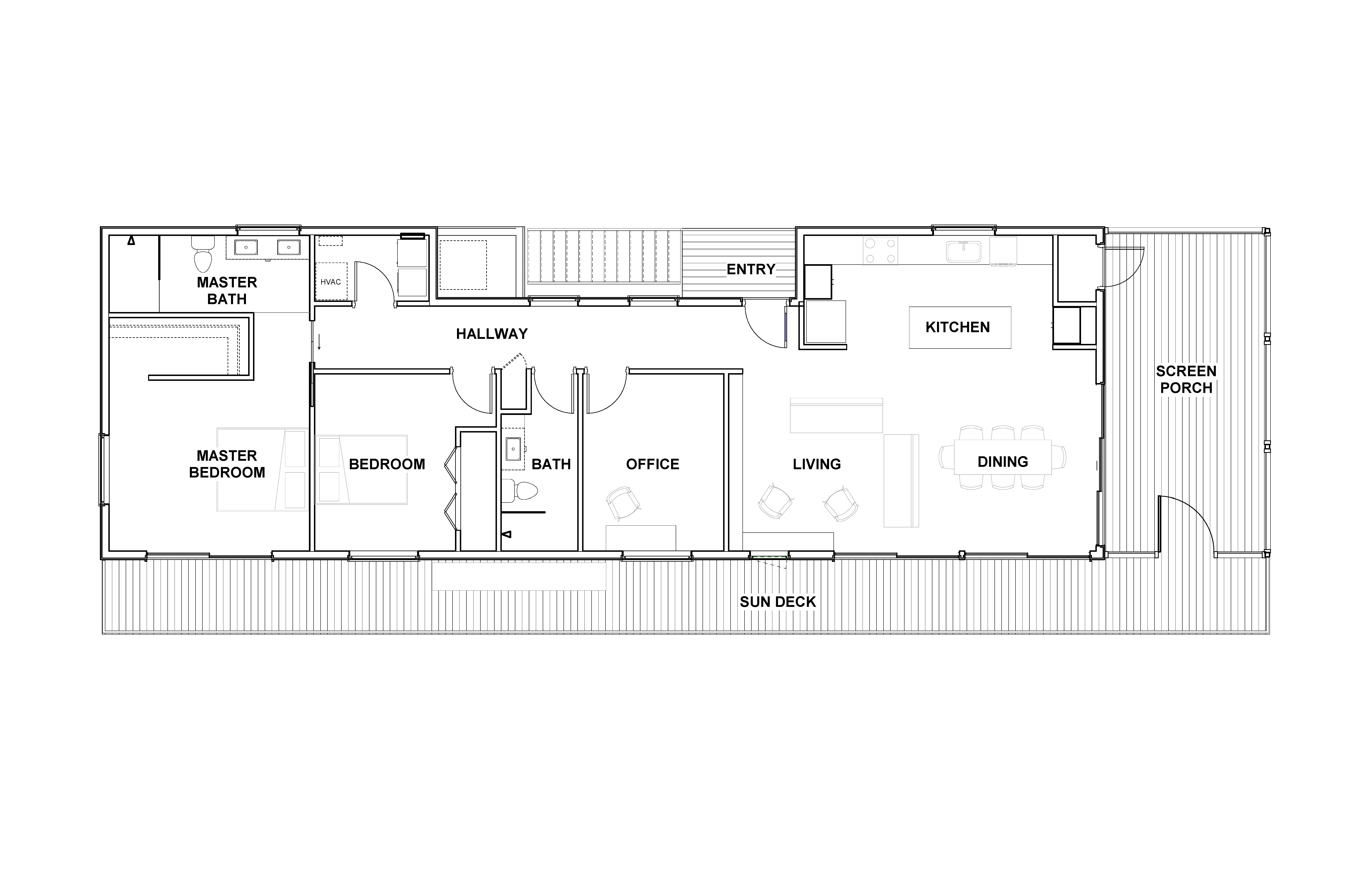
Pelicier Creek House
St. Augustine, Florida
Size:
Coming Soon
Collaborators:
Coming Soon
︎ Index
Next Project ︎
Open City Architecture, Inc.
Archive of Work
︎
︎